Has elegido la edición de . Verás las noticias de esta portada en el módulo de ediciones locales de la home de elDiario.es.
La portada de mañana
Acceder
La izquierda confederal abre una nueva etapa: “Se acabó el derrotismo”
El consejero cesado por Ayuso denunció un caso de corrupción de núcleo duro
OPINIÓN | 'Pactos en la izquierda, ¿para qué?', por Enric González

El último cine abandonado de Gran Vía se convertirá en una gran tienda

Estado actual del Cine Rex, en Gran Vía

Diego Casado

26 de octubre de 2021 10:50 h

0

El 23 de abril de 1945, la Gran Vía saludaba a uno de sus nuevos cines, el Rex. Lo hacía con la película La venus de la selva. Entonces tenía 481 localidades y cuentan que en una de ellas se sentó, para el estreno, el propio alcalde de Madrid de por aquel entonces, Alberto Alcocer. La sala, que durante un tiempo se especializó en cine de terror y en matinales con películas infantiles, perduró 60 años hasta su cierre en 2005. Hoy el Ayuntamiento hace esta clausura definitiva al aprobar un plan para convertir este espacio en un gran local comercial.

Los votos de PP, Vox y Ciudadanos, sumada a la abstención de Más Madrid y grupo mixto -solo el PSOE votó en contra en la Comisión de Urbanismo de la semana pasada y ahora en el Pleno- han dado luz verde esta mañana en el Pleno a la conversión de los locales de este edificio situado en el 43 de la Gran Vía en una tienda de casi 2.000 metros cuadrados, distribuidos en las plantas sótano, baja, entreplanta y anfiteatro del edificio.

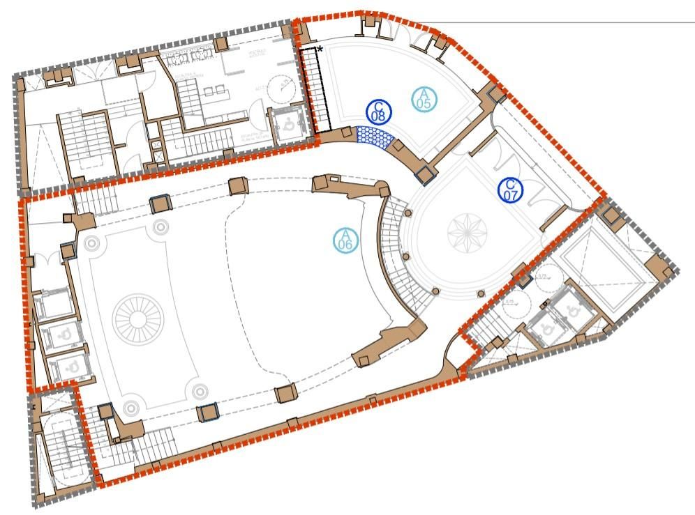
El Plan Especial al que ha tenido acceso Somos Madrid prevé un cambio de uso complementario para “la implantación de uso comercial mediano comercio” con la reducción de aforo a 342 personas. Aunque tanto el antiguo Cine Rex como el local conjunto, la tienda de Gonzalo Modas, cuentan con nivel de protección 1 según el Catálogo de Establecimientos Comerciales, el Ayuntamiento permitirá el derribo de parte de un muro para conectar ambos locales. Esta actuación está señalada con la señal C08 en el siguiente plano:

Actuaciones propuestas en la planta baja del Rex propuestas por el plan especial

La reforma incluirá la restauración integral del local Gonzalo Modas, que incluye la recuperación del suelo, el artesonado en el techo o su paramentos. Además, también se restaurará el antiguo escenario de madera del Rex. Las obras han sido solicitadas por la empresa Curlio Investments y se efectuarán en un edificio que desde hace dos años funciona como el Hotel Room Mate Macarena, una de los más recientes aperturas de la cadena de Kike Sarasola.

El edificio fue proyectado por el arquitecto Luis Gutiérrez Soto en 1943, siguiendo un estilo neoclásico de posguerra. Aunque en principio iba a estar destinado a albergar locales en sus bajos, se modificó el proyecto para abrir un cine en su lugar, aunque se mantuvieron los dos comercios situados en el chaflán con la calle de Silva y frente a ella. Diez años después de su cierre, en 2015, la empresa Axa Real Estate compró el edificio por 42 millones de euros. Dos años después, el Ayuntamiento de Manuela Carmena rechazó un primer proyecto de reforma. En el año 2020, ya con Almeida en la alcaldía, se presentó el nuevo proyecto que, después de una rápida tramitación, este martes ve la luz verde definitiva.

Planta original del cine Rex

El Rex era el último cine que permanecía abandonado en la Gran Vía, un lugar que ha visto cómo iban desapareciendo la mayoría de sus salas para convertirse en comercios de grandes cadenas internacionales, principalmente textiles. Y actualmente uno de los pocos locales libres junto al antiguo Cine Avenida, cuyo futuro aún se desconoce después del cierre de H&M, hace pocos meses.

Fotografía antigua del interior del Cine Rex (arriba) y estado de deteriodo documentado en el Plan Especial (abajo)
Etiquetas
stats