Has elegido la edición de . Verás las noticias de esta portada en el módulo de ediciones locales de la home de elDiario.es.
La portada de mañana
Acceder
Aldama busca escalar la trama de Ábalos hacia el PSOE y Sánchez sin pruebas
Dentro de la secta del 'tío Toni' desde que nacieron: “Al salir no sabes quién eres”
Opinión - 'La demanda de cesarismo sobrevivirá a Trump', por Alberto Garzón

La ONCE quiere convertir sus oficinas del centro de Madrid en un hotel de lujo de seis plantas

Dirección General del Grupo Social ONCE, en la calle Prado de Madrid

Diego Casado / Guillermo Hormigo

11 de marzo de 2023 22:16 h

7

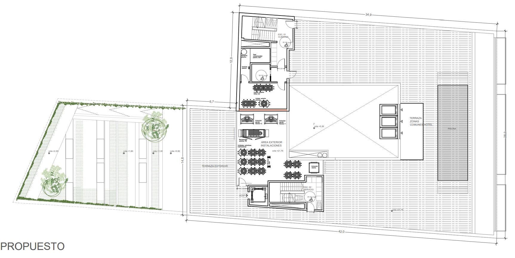
Un nuevo proyecto hotelero en el centro de Madrid planea reconvertir en hospedaje la sede de la Dirección General de la ONCE, en el número 24 de la calle Prado, a pocos metros del Ateneo y en pleno barrio de las Letras. Una operación que transformará este edificio de seis plantas y supondría para la entidad más de tres millones de euros en beneficios netos al año, según los detalles del proyecto a los que ha tenido acceso Somos Madrid.

Para reacondicionar el edificio, construido en el año 1966 y que no se encuentra bajo ningún tipo de protección, se prevé una inversión de 20 millones de euros. El resultado final será un hotel de cuatro estrellas y 8.100 metros cuadrados, distribuidos en seis plantas y garaje, con habitaciones a 190 euros la noche de precio medio. El proyecto plantea recuperar el patio histórico histórico del inmueble, reinterpretando el diseño original con una terraza-jardín. Será la actuación más destacada dentro de una remodelación general que no incluye demoler todo el edificio, aunque sí importantes obras de adecuación.

La remodelación mantendrá las dos plantas de garaje actuales, donde además de espacio para 26 coches se instalarán servicios del hotel como almacenes, cuartos de lavandería, de basuras, vestuarios y sala de personal. En la planta baja estarán los accesos y la citada terraza y a partir de la segunda se plantean 24 habitaciones dobles por cada altura, hasta sumar 116 estancias. Habrá también planta ático con piscina y solarium.

El hotel proyectado se encuentra en un entorno inmejorable para el turismo: a dos manzanas del Thyssen, 5 minutos del Prado y compartiendo manzana con la Casa Museo de Lope de Vega, a cuya parte posterior dará la nueva terraza con jardín, creando un espacio verde que se complementa también con el parque interior de otro edificio colindante. La zona está plagada también de hoteles de alto nivel como el Vincci casi anexo al edificio de la ONCE, el Hilton o el Villa Real que hace esquina con la calle San Agustín.

Alzado del estado actual (arriba) y del hotel (debajo) propuesto por la ONCE, que incluye su nuevo patio

En la memoria del proyecto presentado al Ayuntamiento de Madrid aparece como promotora la empresa Ilunion Hotels S.A., cadena hotelera del propio Grupo Social ONCE caracterizada por su apuesta por alojamientos accesibles para personas con diversidad funcional. La compañía cuenta ya con otros cuatro hospedajes en la capital, aunque ninguno está situado en un emplazamiento tan céntrico.

Fuentes del Grupo Social ONCE aseguran en declaraciones a este diario que con los estudios elaborados y la documentación presentada están preparando el terreno en caso de ejecutar la reconversión del edificio, pero que “la decisión no está tomada” y en todo caso sería “a largo plazo”.

Piscina, zonas comunes y vistas al jardín en la azotea del hotel de la ONCE proyectado

La Dirección General de la ONCE, que hasta ahora tenía su centro de operaciones en este inmueble, es el órgano encargado de la gestión directa de los servicios que se prestan a las personas ciegas, así como del área de juego. Se encarga de materializar los acuerdos adoptados por el Consejo General. De ella dependen su estructura territorial (Delegaciones Territoriales, Direcciones de Zona, Direcciones de Apoyo y Agencias) y la de sus Centros Especializados para la atención personal de afiliados y afiliadas. Desde la propia ONCE aclaran que “toda la plantilla sería reubicada” en otras oficinas de la organización.

La operación llega después de que otro edificio del distrito Centro ligado a una importante organización, en este caso UGT, iniciase su transformación en un complejo hotelero. Se trata del Convento de las Recogidas, en plena calle de Hortaleza. En febrero de 2022, el Ayuntamiento de Madrid aprobó convertir en 41 habitaciones de hotel las oficinas de la sede sindical ubicada en este edificio histórico y religioso, que data de 1623.

La conversión de edificios de oficinas en hoteles se ha acelerado en Madrid después de la pandemia. Numerosos establecimientos de cuatro y cinco estrellas han abierto en los últimos meses en el entorno de Sol-Gran Vía-Letras y lo harán muchos más en los próximos años. En la principal avenida del centro el área de Desarrollo Urbano acaba de aprobar transformar el edificio del Romano de la Gran Vía y otro cercano en sendos hoteles con más de un centenar de habitaciones cada uno.

Etiquetas
stats