Has elegido la edición de . Verás las noticias de esta portada en el módulo de ediciones locales de la home de elDiario.es.

Un incendio en Puente de Vallecas asola un edificio situado en una parcela donde se proyectan 22 viviendas

El inmueble que ardió este miércoles en Puente de Vallecas, situado en el número 16 de la avenida de la Albufera.

Guillermo Hormigo

1

“Lo que empezó con un incendio termina con otro”. Así resumía una cuenta de Twitter la historia de dos inmuebles que comparten parcela en la avenida de la Albufera, corazón del distrito Puente de Vallecas. Uno de ellos resurgió de las cenizas y más tarde volvió al ostracismo. El otro acaba de protagonizar un aparatoso incendio que se ha saldado con un herido. En el terreno ocupado por ambos se levantará un nuevo bloque de viviendas que ya cuenta con el visto bueno del Ayuntamiento de Madrid.

El proyecto ha cobrado especial visibilidad después de los sucedido este miércoles. Un hombre de 40 años ha acabado con una lesión ortopédica al precipitarse desde el primer piso del edificio abandonado en el número 16 de la citada avenida de la Albufera, según ha informado Emergencias Madrid. “Una nave de dos alturas con algunas partes que ya han colapsado. Vamos a dejarla precintada para que no pueda entrar ninguna persona”, avisa Luis Barcenilla, supervisor de guardia de Bomberos Madrid. Por el momento se desconoce el origen del incendio.

A solo unos pasos de dicha nave, justo delante, se ubicaba el portal 12 de la misma vía. Cuando todavía se la conocía como avenida de Valencia, otras llamas trastocaron la rutina vallecana hace ya 108 años. Era un 16 de mayo de 1915 cuando un fuego arrasó en pocas horas tres viviendas y varios locales: una taberna, una lechería, una droguería, una pastelería y una farmacia.

Comenzó entonces un proceso de reconstrucción para que el inmueble recuperara su antiguo esplendor. Un pasado que no era demasiado ostento, pero sí muy digno. La nueva edificación imitó el modelo previo, muy habitual en la época: negocios en los bajos y pisos residenciales en el primer piso. Aparecieron una tienda de alimentación, una óptica y, de nuevo, una farmacia. Porque nunca sobra una farmacia.

Pero esta historia de humilde esplendor se torció en agosto de 2022. La pared de uno de los locales colapsó y el edificio tuvo que ser desalojado. Finalmente, fue declarado en ruina y derruído. Según algunos vecinos, desde entonces ha sido habitual ver personas sin hogar en el interior del otro edifico de la parcela, el que ahora ha ardido, aunque no pesaba ninguna orden de desalojo ni había abierto ningún proceso al respecto.

Pasaron pocas semanas desde la demolición del inmueble hasta que la cooperativa de viviendas Albufera 12, constituida ex profeso para estre procedimiento, presentó en calidad de promotora el proyecto para nuevas edificaciones en el terreno, junto al arquitecto Carlos Nieto Gómez. En el documento, al que ha tenido acceso Somos Madrid, se habla de 22 viviendas unifamiliares con trastero, garaje y piscina. La memoria prevé igualmente 42 plazas de garaje en dos plantas de sótano.

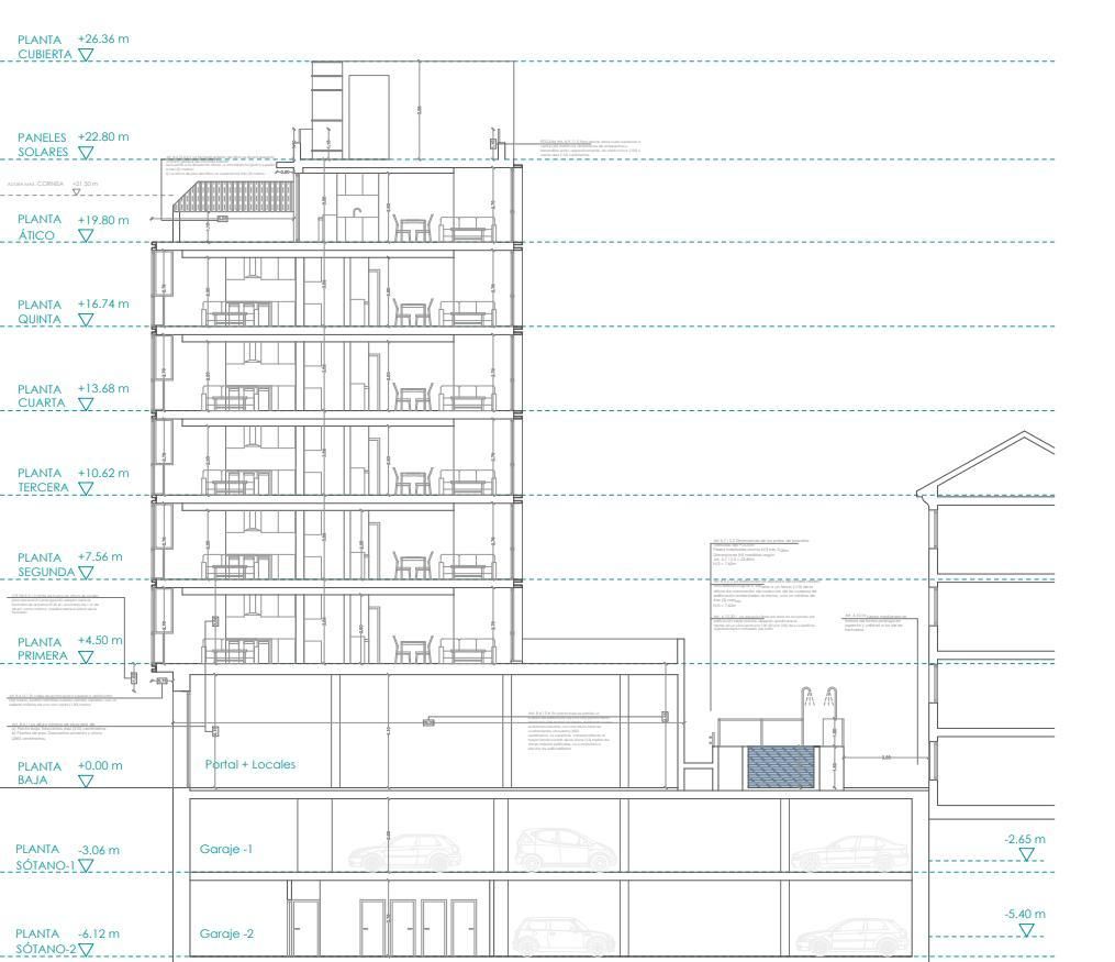
Será un edificio de seis pisos de altura, frente a las cuatro del que se encuentra inmediatamente detrás, además de una cubierta en la que convivirán la colocación de paneles solares con instalaciones para uso y disfrute de los residentes. La planta baja alojará locales comerciales, además del portal. El Ayuntamiento le dio luz verde al planteamiento a finales del pasado año.

Plano del inmueble que se va a edificar en los números 12 y 16 de la avenida de la Albufera (vista frontal).

Los planos muestran que la edificación se levanta también en el edificio que ha ardido este miércoles, sobre cuyo terreno están proyectadas las terrazas y un jardín con piscina. “¿A los promotores les da igual este incendio o les permite acelerar la construcción? ¿Quién es responsable, por acción u omisión, de la degradación del edificio?”, se preguntan ante esta coincidencia desde el centro social La Villana.

Plano del inmueble que se va a edificar en los número 12 y 16 de la avenida de la Albufera. Vista lateral, en la que se aprecia la actuación sobre el terreno ocupado por el edifico que ha ardido ahora (entre el nuevo bloque de edificios y el ya existente detrás de la parcela).

Fuentes vecinales explican igualmente sus reticencias al nuevo bloque: “En primer lugar no encaja, ni por tipo de construcción ni por altura, con el resto del barrio. Pero lo peor es el efecto que puede tener en las viviendas cercanas, bloqueándolas y mermando su luz”. Muestran asimismo suspicacias por el momento en el que ha tenido lugar el incendio, con un proyecto sobre la mesa que afecta de lleno al espacio que todavía hoy ocupa esta edificación: “Desde luego los tiempos les son cuánto menos oportunos”.

Etiquetas
stats