Has elegido la edición de . Verás las noticias de esta portada en el módulo de ediciones locales de la home de elDiario.es.
La portada de mañana
Acceder
La investigación del accidente de Adamuz intenta conocer qué pasó en los raíles
Crónica - 'La venganza del PP contra Óscar Puente', por Sáenz de Ugarte
Opinión - '¿Por qué el odio se volvió respetable?', por Alberto Garzón

Aparcamiento Madrid
Ciudad Lineal estrenará parquímetros en Colina y parte de Ventas a partir del 27 de junio

Planos del SER en los barrios de Colina y Ventas, en Ciudad Lineal

Somos Madrid

1 de junio de 2022 09:32 h

0

Los parquímetros se siguen extendiendo en Madrid por los barrios limítrofes de la M-30. Después de llegar a Puerta del Ángel y Los Cármenes el pasado mes de mayo, a finales de junio se instalarán por primera vez en Ciudad Lineal. El Servicio de Estacionamiento Regulado (SER) se pondrá en marcha en Colina y Ventas a partir del 27 de junio, informa en nota de prensa el Área de Medio Ambiente y Movilidad.

El Ayuntamiento de Madrid pintará de verde y azul 3.685 plazas de aparcamiento en Ventas y 1.008 en Colina. La mayoría estarán destinadas a residentes, aunque 228 estacionamientos en Ventas y 32 en Colina serán para visitantes como zona azul, según los planos publicados en la página municipal sobre el SER.

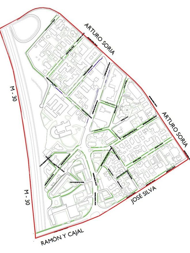
El consistorio aprobó estos parquímetros después de una consulta online efectuada en los ocho barrios de Ciudad Lineal, donde los vecinos que participaron decidieron dar su visto bueno a su colocación en cuatro de ellos, los ahora citados además de Quintana y San Pascual. El área de Movilidad ha decidido, de momento, ponerlos en la parte de Ventas más cercana a la M-30, en el perímetro que queda delimitado por la calle Alcalá, la calle Hermanos Gómez, la avenida Marqués de Corbera y la avenida de la Paz. En el caso de Colina, la extensión comprende todo el barrio, es decir, el interior del perímetro que forman las calles de Arturo Soria, José Silva, la avenida Ramón y Cajal y la M-30.

Distribución de plazas verdes y azules del SER en el barrio de Ventas
Distribución de plazas verdes y azules del SER en el barrio de Colina

La modificación de la Ordenanza de Movilidad Sostenible, aprobada el 13 de septiembre de 2021, prevé en su artículo 57 la ampliación del SER a 20 nuevos barrios de la ciudad siempre que, tal y como recoge la disposición transitoria quinta, cuente “con acuerdo previo favorable de la Junta de Distrito correspondiente, así como haber consultado a los vecinos y asociaciones vecinales afectadas”.

Cómo pedir la tarjeta del SER

Desde este miércoles, los vecinos empadronados en los dos barrios podrán solicitar la autorización de estacionamiento de residente para poder aparcar sin ser sancionados en las nuevas reservas. En los próximos días, el Ayuntamiento de Madrid iniciará una campaña de comunicación para que los vecinos conozcan las características de la ampliación. Se remitirán cartas, SMS y correos electrónicos.

Está prevista la colocación carteles informativos en las comunidades de vecinos y se repartirán dípticos con información respecto a los canales a través de los cuales se podrá obtener la autorización de estacionamiento (teléfono 010, web municipal del SER, cualquiera de las oficinas de atención a los ciudadanos de Línea Madrid o la Oficina Especializada de la calle Bustamante, 16). Los requisitos para la obtención de autorización de estacionamiento para residentes se pueden consultar en este enlace.

Aparcamiento para los toros

Según el área de Movilidad, los vecinos de Ventas y Colina sufren serias dificultades para encontrar aparcamiento en sus barrios debido, principalmente, al efecto frontera respecto a barrios con estacionamiento regulado. Los estudios realizados por los servicios municipales en 2020 evidenciaban un porcentaje de ocupación por vehículos de visitantes estacionados superior al 50 % en el barrio de Ventas, concretamente en las franjas coincidentes con el horario comercial, y hasta del 85 % en el barrio de Colina en las franjas horarias correspondientes a la jornada laboral.

En Ventas destaca la influencia de la plaza de toros en días de eventos o venta de entradas, el efecto del comercio local sobre el estacionamiento, así como los accesos desde la M-30, que han convertido al barrio en un aparcamiento disuasorio para usuarios de rutas intermodales.

En Colina se ha constatado el uso del barrio como aparcamiento disuasorio por parte de los trabajadores no residentes con el fin de acudir a sus puestos de trabajo aprovechando la oferta de transporte público del barrio (dos estaciones de metro y varias líneas de autobús). Muchos de ellos acceden desde vías importantes como la M-30 o llegan a pie a la zona regulada a través de la calle Costa Rica y la avenida de Ramón y Cajal, con el fin de evitar las limitaciones del estacionamiento regulado.

Etiquetas
stats